hero-image-0

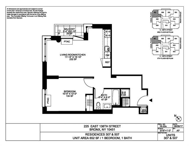
Unit 307

The Joinery
Sold
Sold
1
1
652
Unit 307 details
unit-banner-image
unit-banner-image
unit-banner-image
Unit 307 is now sold.
Check out available nearby condos below.