hero-image-0

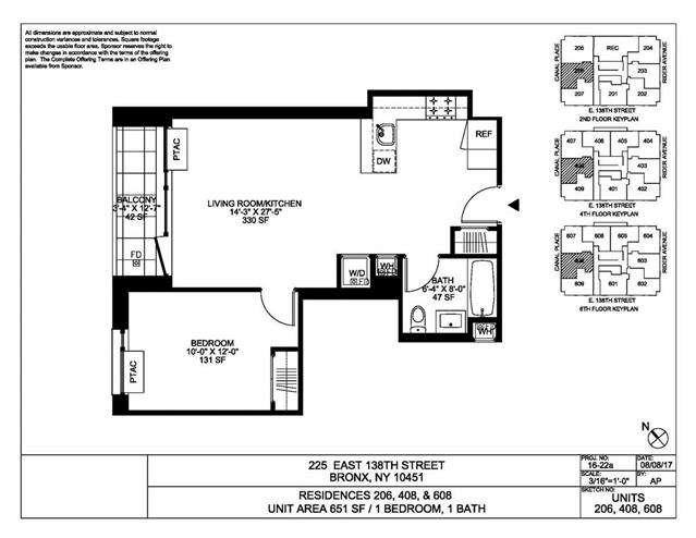
Unit 206

The Joinery
Sold
Sold
1
1
651
Unit 206 details
unit-banner-image
unit-banner-image
unit-banner-image
Unit 206 is now sold.
Check out available nearby condos below.