hero-image-0

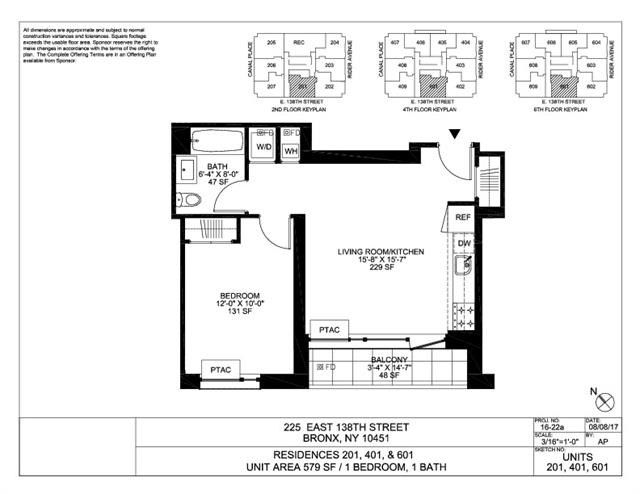
Unit 201

The Joinery
Sold
Sold
1
1
579
Unit 201 details
unit-banner-image
unit-banner-image
unit-banner-image
Unit 201 is now sold.
Check out available nearby condos below.