






















Get additional information including price lists and floor plans.



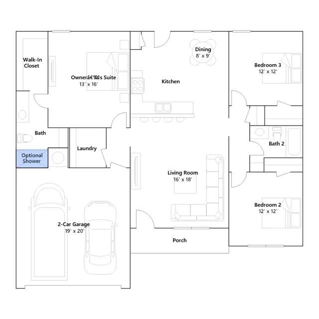
This new single-story home offers convenient single-story living, ideal for modern lifestyles. An open-concept layout blends the kitchen, living and dining areas with a nearby patio for simple indoor-outdoor living. Two bedrooms are tucked away to the side of the home, opposite from a luxurious owners suite with a full bathroom and walk-in closet.
Stay informed with Livabl updates on new community details and available inventory.