






































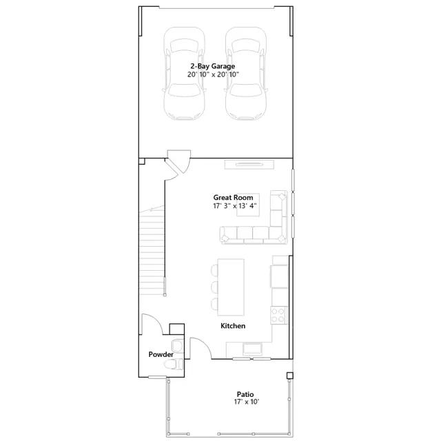
This home offers a great layout for all lifestyle types, from young families to busy professionals. The first floor features a kitchen with a large center island that includes bar-style seating, as well as an open family room. Upstairs are three bedrooms, with two secondary bedrooms, a full-sized bathroom, as well as the lavish owners suite.
Stay informed with Livabl updates on new community details and available inventory.