










































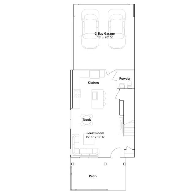
This two-story townhome offers a low maintenance and modern design. The first level is dedicated to shared living with an open layout among the Great Room and kitchen with a large center island that doubles as a breakfast bar. On the second floor are all three bedrooms, including the lavish owners suite. A two-bay garage set at the rear of the home adds great curb appeal.
Stay informed with Livabl updates on new community details and available inventory.