









































































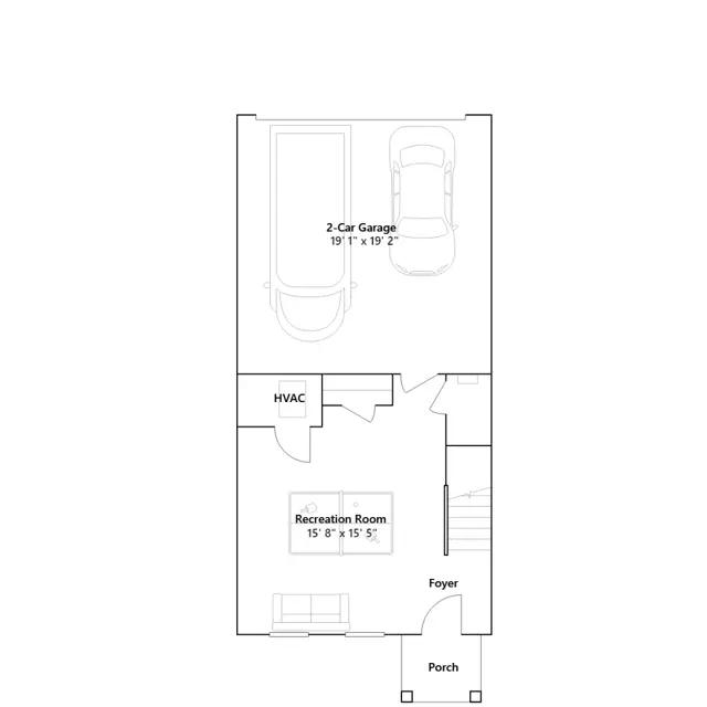
Designed for gracious living, this new townhome presents four floors with ample room to grow and entertain. Upon entry is a versatile recreation room to host gatherings and a rear two-car garage for storage space. On the second floor is an open-plan layout shared by the kitchen, dining room and a Great Room with a cozy balcony. All three bedrooms reside on the third floor to provide restful havens. Rounding out the home is a top-level loft and a large deck ideal for starlit activities.
Stay informed with Livabl updates on new community details and available inventory.