















































































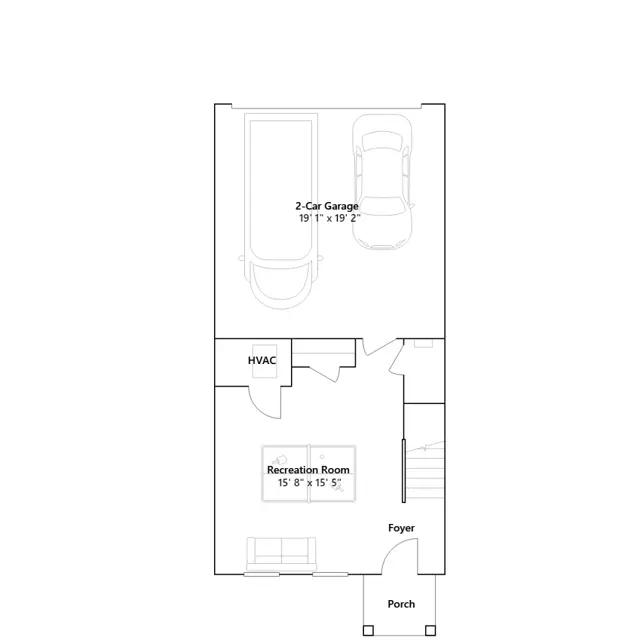
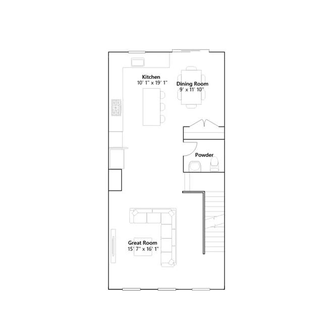
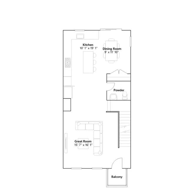
This new three-story townhome features a recreation room and convenient two-car garage on the first level, while upstairs is the dedicated living and entertaining area. It showcases an open-concept layout shared by the modern kitchen with a center island, a cozy dining room and a sprawling Great Room made for gatherings. Residing on the top floor are all three bedrooms to provide a private and restful haven.
Stay informed with Livabl updates on new community details and available inventory.