hero-image-0
hero-image-1

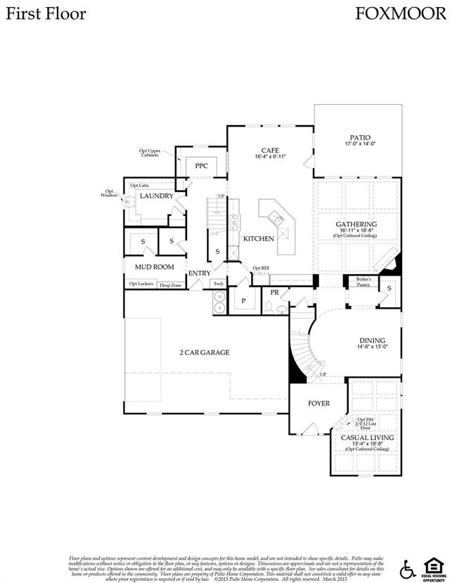
Foxmoor Plan

By

Pulte Homes

   |   

Whetstone

Whetstone
Sold
Sold
4
3
1
From 4,418
unit-banner-imageunit-banner-imageunit-banner-image
Foxmoor Plan details
Foxmoor Plan is now sold.
Check out available nearby plans below.