

















Images unavailable
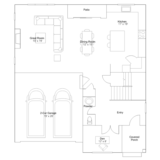
A spacious two-story home designed for modern living, with a convenient first floor-den and open layout among the well-equipped kitchen, Great Room and dining area. Upstairs is a bonus room surrounded by all four bedrooms, including the owners suite with spa-like bathroom and expansive walk-in closet.