





















































Get additional information including price lists and floor plans.
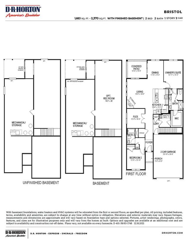
The Bristol by D.R. Horton is a stunning new construction, ranch home plan with an opt. loft featuring 1,748 square feet of living space, 2+ bedrooms, 2+ bathrooms and a 2-car garage. Look no further than the Bristol for the convenience of first floor living! The foyer welcomes you in past a large bedroom and flex room, you decide how this space functions! The kitchen with a large island perfect for prep work, entertaining and casual dining flows effortlessly into the living room and dining area. The owners suite is off the main living area and features a spacious bathroom and huge walk-in closet that has a door into the laundry room simplifying an everyday chore! An optional loft is offered on the Bristol plan that features an additional full bedroom & bathroom, the perfect space for any guests staying with you to retreat to!
Stay informed with Livabl updates on new community details and available inventory.