hero-image-0

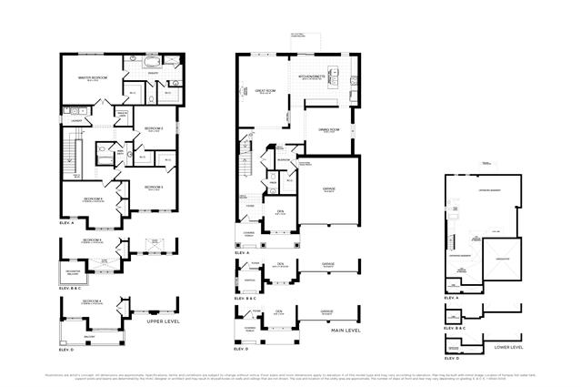
Theodosia Plan

Brantview Heights Phase 2
Sold
Sold
4
2
1
From 3,442
unit-banner-imageunit-banner-imageunit-banner-image
Theodosia Plan details
Theodosia Plan is now sold.
Check out available nearby plans below.