Glasswing 4
Nature’s Grand
Northwest Industrial Park, Brantford
Glasswing 12
Palmerston
Empire Wyndfield
Shellard Lane, Brantford
Belwood
Wilderwood A
Sienna Woods
West Brant, Brantford
Sunridge
The Hickory B
Echo Park Residences
Echo Place, Brantford
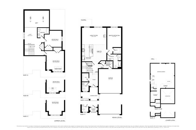
Kirby A