hero-image-0

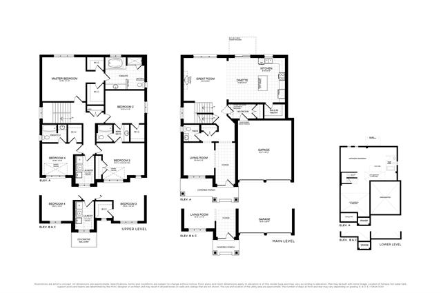
Anderson Plan

Brantview Heights Phase 2
Sold
Sold
4
3
1
From 2,689
unit-banner-imageunit-banner-imageunit-banner-image
Anderson Plan details
Anderson Plan is now sold.
Check out available nearby plans below.