Belwood
Empire Wyndfield
Shellard Lane, Brantford
Palmerston
Kirby A
Sienna Woods
Oakhill, Brant
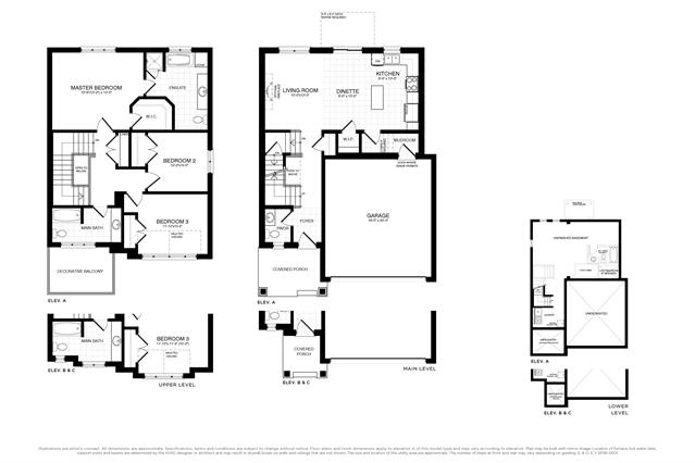
The Hickory B
Echo Park Residences
Echo Place, Brantford
Wilderwood A
Glasswing 4
Nature’s Grand
Northwest Industrial Park, Brantford
Glasswing 12
Camden