hero-image-0
hero-image-1
hero-image-2
hero-image-3
hero-image-4
hero-image-5

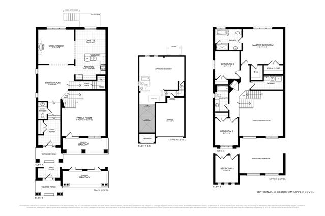
Richelieu Plan

Brantview Heights Phase 1
Sold
Sold
3
2
1
From 2,520
unit-banner-imageunit-banner-imageunit-banner-image
Richelieu Plan details
Richelieu Plan is now sold.
Check out available nearby plans below.