hero-image-0
hero-image-1

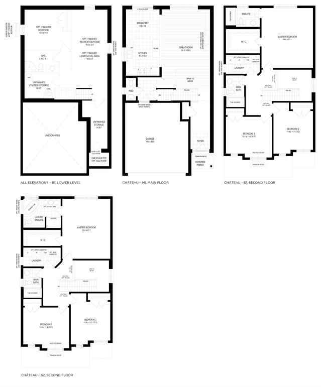
Stonehaven - Modern Plan

Brant West Phase 1
Sold
Sold
3
2
1
From 1,914
Stonehaven - Modern Plan details
Stonehaven - Modern Plan is now sold.
Check out available nearby plans below.