hero-image-0
hero-image-1

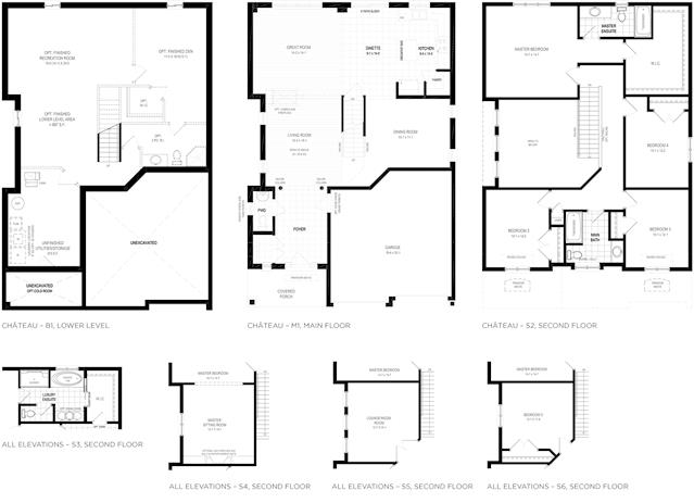
Millbank II - Modern Plan

Brant West Phase 1
Sold
Sold
4
2
1
From 2,483
Millbank II - Modern Plan details
Millbank II - Modern Plan is now sold.
Check out available nearby plans below.