hero-image-0
hero-image-1

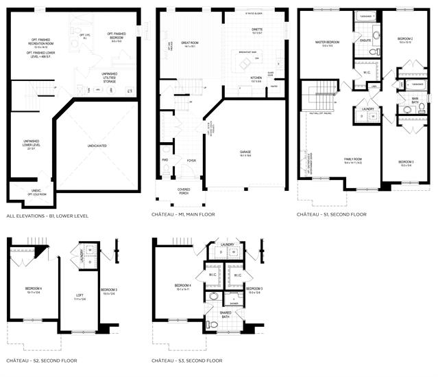
MacIntosh - Chateau Plan

Brant West Phase 1
Sold
Sold
3
2
1
From 2,006
MacIntosh - Chateau Plan details
MacIntosh - Chateau Plan is now sold.
Check out available nearby plans below.