hero-image-0
hero-image-1

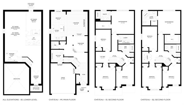
Juniper - Modern Plan

Brant West Phase 1
Sold
Sold
4
2
1
From 2,291
unit-banner-imageunit-banner-imageunit-banner-image
Juniper - Modern Plan details
Juniper - Modern Plan is now sold.
Check out available nearby plans below.