hero-image-0
hero-image-1
hero-image-2

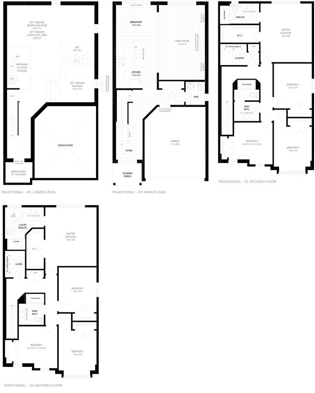
Hughson - Modern Plan

Brant West Phase 1
Sold
Sold
4
2
1
From 2,170
Hughson - Modern Plan details
Hughson - Modern Plan is now sold.
Check out available nearby plans below.