hero-image-0
hero-image-1

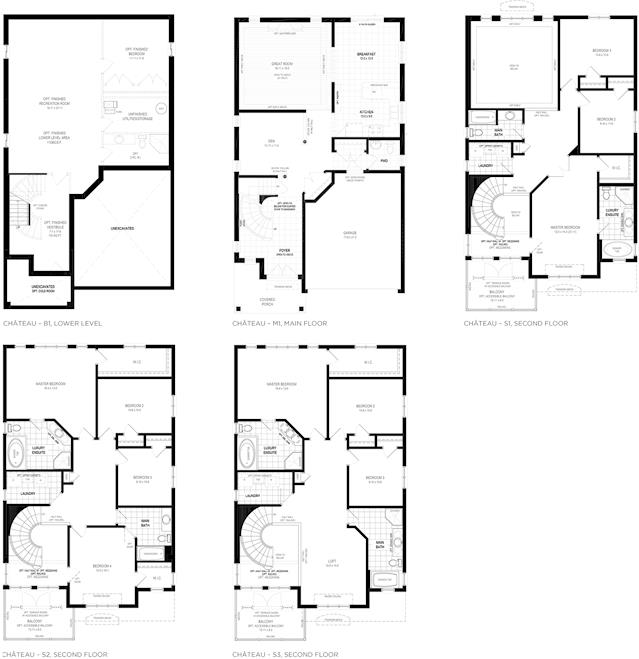
Gardenview - Chateau Plan

Brant West Phase 1
Sold
Sold
3
2
1
From 2,562
Gardenview - Chateau Plan details
Gardenview - Chateau Plan is now sold.
Check out available nearby plans below.