hero-image-0
hero-image-1

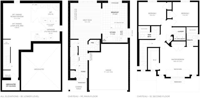
Gardenia - Traditional Plan

Brant West Phase 1
Sold
Sold
3
2
1
From 1,519
Gardenia - Traditional Plan details
Gardenia - Traditional Plan is now sold.
Check out available nearby plans below.