hero-image-0
hero-image-1

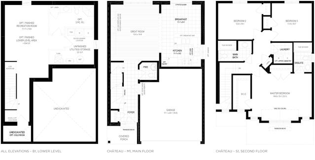
Gardenia - Modern Plan

Brant West Phase 1
Sold
Sold
3
2
1
From 1,503
Gardenia - Modern Plan details
Gardenia - Modern Plan is now sold.
Check out available nearby plans below.