hero-image-0
hero-image-1

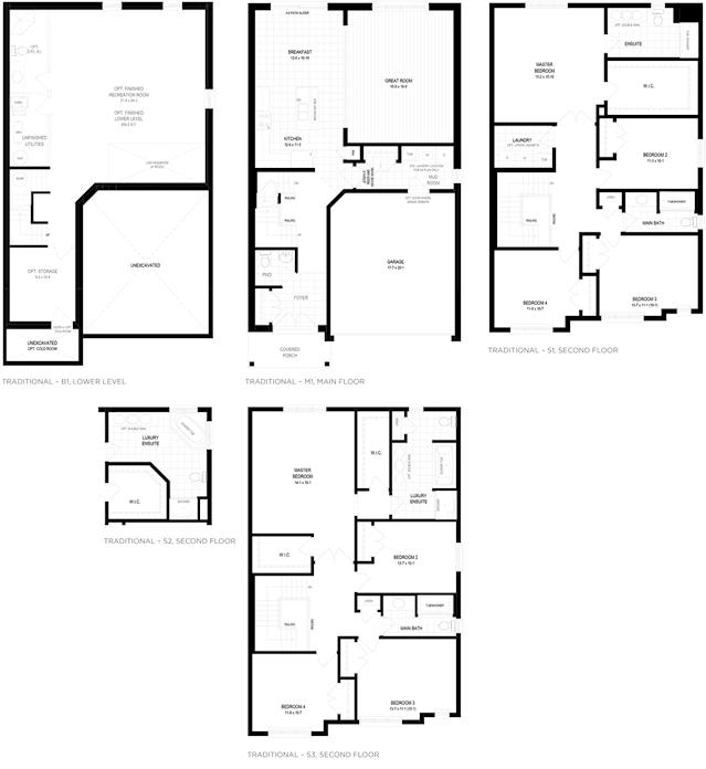
Dundurn - Tuscan Plan

Brant West Phase 1
Sold
Sold
4
2
1
From 2,339
Dundurn - Tuscan Plan details
Dundurn - Tuscan Plan is now sold.
Check out available nearby plans below.