hero-image-0
hero-image-1

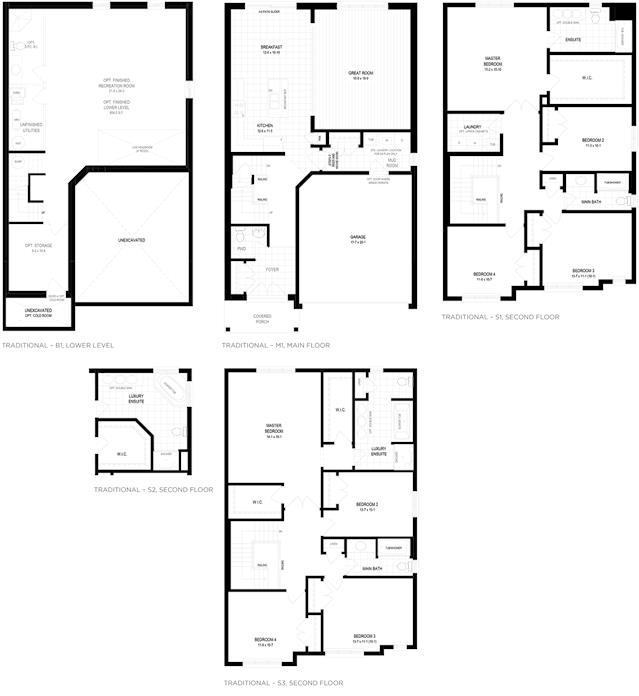
Dundurn - Modern Plan

Brant West Phase 1
Sold
Sold
4
2
1
From 2,339
Dundurn - Modern Plan details
Dundurn - Modern Plan is now sold.
Check out available nearby plans below.