hero-image-0
hero-image-1

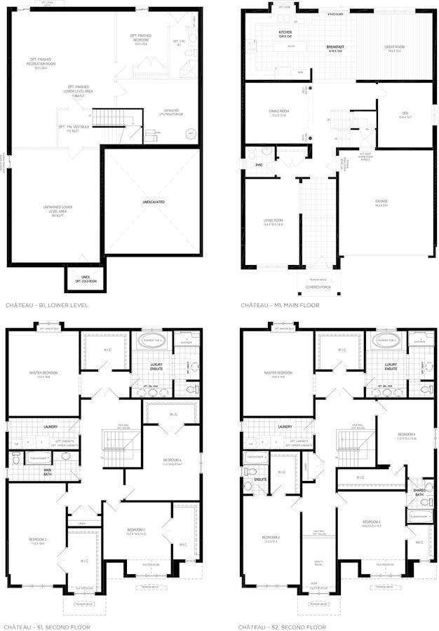
Corsica - Modern Plan

Brant West Phase 1
Sold
Sold
4
3
1
From 3,333
Corsica - Modern Plan details
Corsica - Modern Plan is now sold.
Check out available nearby plans below.