hero-image-0
hero-image-1

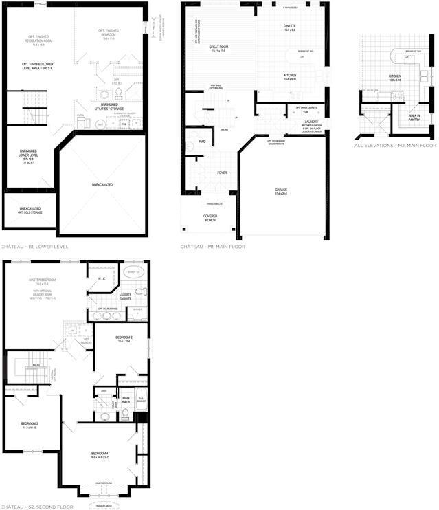
Cerulean - Tuscan Plan

Brant West Phase 1
Sold
Sold
4
2
1
From 2,289
Cerulean - Tuscan Plan details
Cerulean - Tuscan Plan is now sold.
Check out available nearby plans below.