hero-image-0
hero-image-1

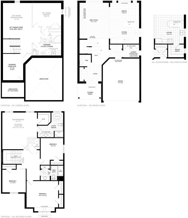
Cerulean - Chateau Plan

Brant West Phase 1
Sold
Sold
4
2
1
From 2,266
Cerulean - Chateau Plan details
Cerulean - Chateau Plan is now sold.
Check out available nearby plans below.