hero-image-0
hero-image-1

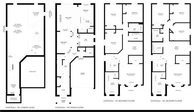
Cedarwood - Modern Plan

Brant West Phase 1
Sold
Sold
4
2
1
From 2,614
unit-banner-imageunit-banner-imageunit-banner-image
Cedarwood - Modern Plan details
Cedarwood - Modern Plan is now sold.
Check out available nearby plans below.