hero-image-0
hero-image-1

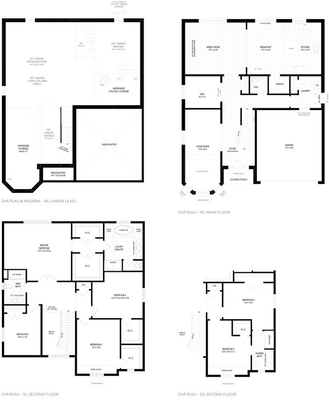
Bordeaux II - Traditional Plan

Brant West Phase 1
Sold
Sold
4
3
1
From 3,172
Bordeaux II - Traditional Plan details
Bordeaux II - Traditional Plan is now sold.
Check out available nearby plans below.