hero-image-0
hero-image-1

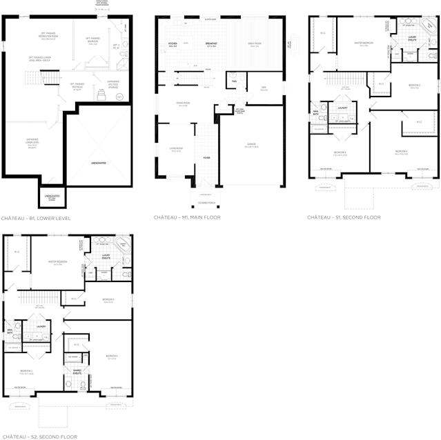
Albion - Chateau Plan

Brant West Phase 1
Sold
Sold
4
3
1
From 3,164
Albion - Chateau Plan details
Albion - Chateau Plan is now sold.
Check out available nearby plans below.