hero-image-0
hero-image-1

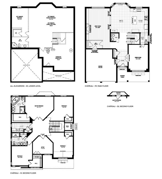
Jewel II - Traditional Plan

By

Losani Homes

   |   

Simply Grand

Simply Grand
Sold
Sold
4
2
1
From 3,030
unit-banner-imageunit-banner-imageunit-banner-image
Jewel II - Traditional Plan details
Jewel II - Traditional Plan is now sold.
Check out available nearby plans below.