hero-image-0
hero-image-1

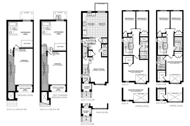
Dunsdon 2 (End) - A Plan

Sienna Woods
Sold
Sold
3
1
1
From 1,452
unit-banner-imageunit-banner-imageunit-banner-image
Dunsdon 2 (End) - A Plan details
Dunsdon 2 (End) - A Plan is now sold.
Check out available nearby plans below.

Interested? Receive updates

Stay informed with Livabl updates on new community details and available inventory.