hero-image-0
hero-image-1

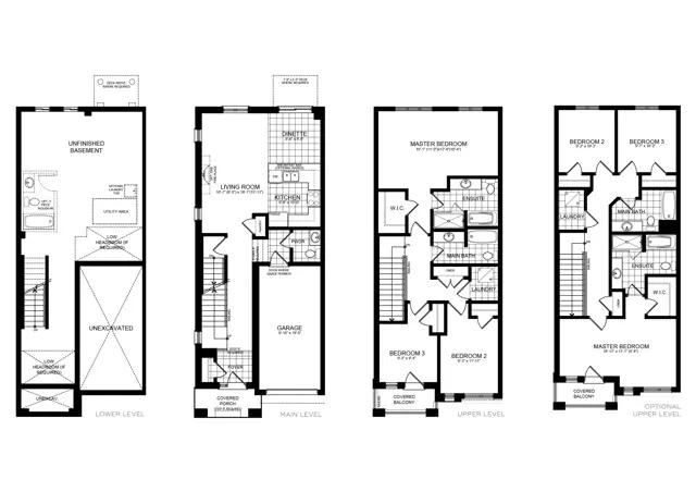
45 George Brier Drive East

Scenic Ridge - Phase 3
Sold
Sold
2
3
2
1
1,624
45 George Brier Drive East details
45 George Brier Drive East is now sold.
Check out available nearby townhomes below.

Interested? Receive updates

Stay informed with Livabl updates on new community details and available inventory.