





















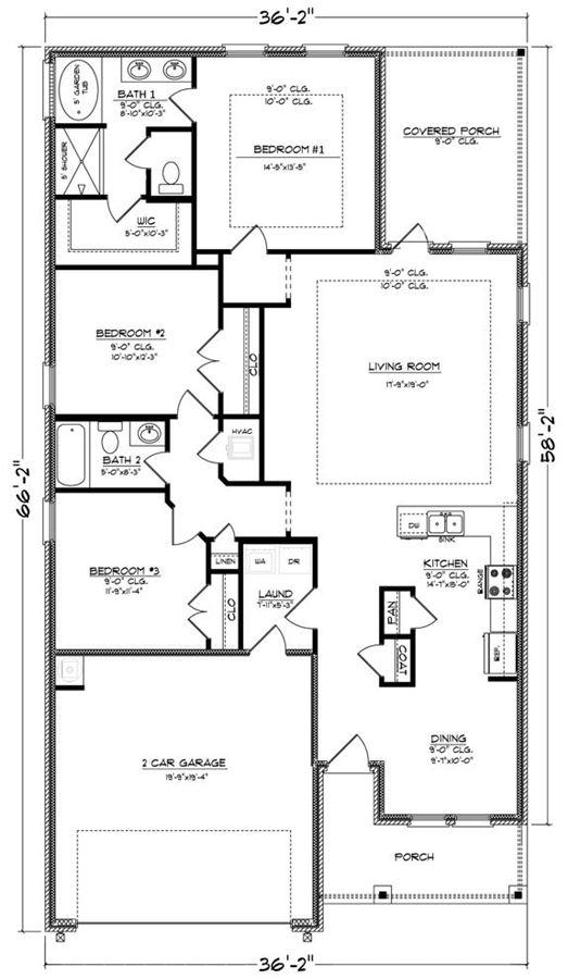
The Emily is a D.R. Horton floor plan with three bedrooms and two bathrooms in over 1,600 square feet of space. As you enter the home, the kitchen opens to the living area. The dining room is towards the front of the home opposite the kitchen. The laundry room and bedrooms are on one side of the home. The largest bedroom is toward the rear of the home. Off the living space is the back patio. Pictures are of a similar home and not necessarily of the subject property, including interior and exterior colors, options, and finishes. Pictures are representational only. Furnishings, decorative items, and TVs are not included in the home purchase. This home is a ''Smart Home'', a standard package that includes: a Z-Wave programmable thermostat manufactured by Honeywell; a Homeconnect TM door lock manufactured by Kwikset; Deako Smart Switches; an Qol...