hero-image-0
hero-image-1
hero-image-2
hero-image-3
hero-image-4

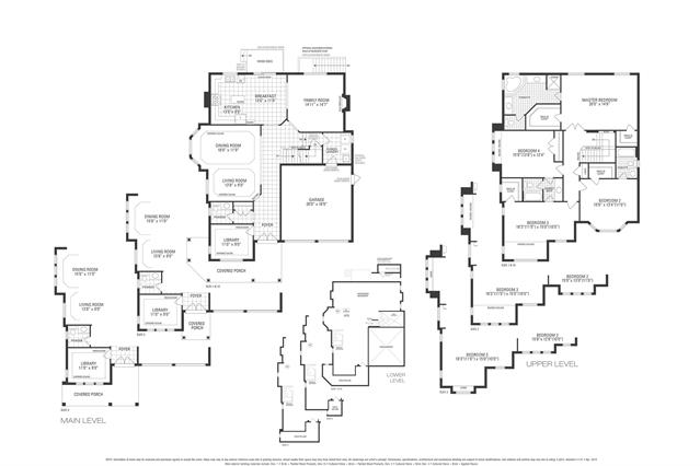
Ashford 12 Plan

Vales of the Humber Estates
Sold
Sold
4
3
From 3,175
unit-banner-imageunit-banner-imageunit-banner-image
Ashford 12 Plan details
Ashford 12 Plan is now sold.
Check out available nearby plans below.