Silver C1
Mayfield Village
Sandringham-Wellington North, Brampton
Sunstone C2
Sunstone C1
Jade C
Miica C
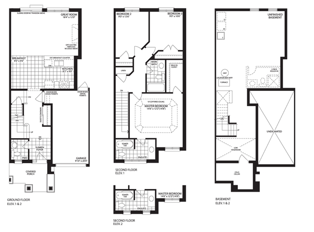
The Archdale
Heritage Heights by Paradise
Northwest Brampton, Brampton
Silver C2
The Spencer
Upper Mount Pleasant prepares for brand new release of lots in Brampton
With over 100 new lots available, prospective home buyers will be able to choose from a wide selection of home designs.