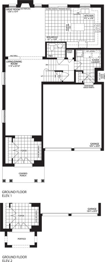
FEATURED
The Eldorado
Classic Drive
Credit Valley, Brampton
The Fairway
The Links
The Links (Select)
The Valleyland
The Lionhead (Corner)
The Patterson
The Alexander
Upper Mount Pleasant prepares for brand new release of lots in Brampton
With over 100 new lots available, prospective home buyers will be able to choose from a wide selection of home designs.