FEATURED
The Links
Classic Drive
Credit Valley, Brampton
The Eldorado
The Alexander
The Fairway
The Valleyland
The Patterson
The Links (Select)
The Lionhead (Corner)
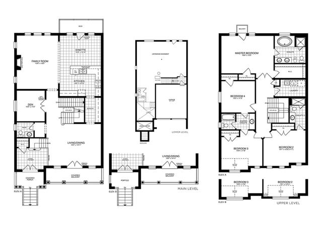
LIV Communities launches sales at The Classics of Brampton
The much anticipated master planned community is the developer’s second project in the city.