hero-image-0
hero-image-1
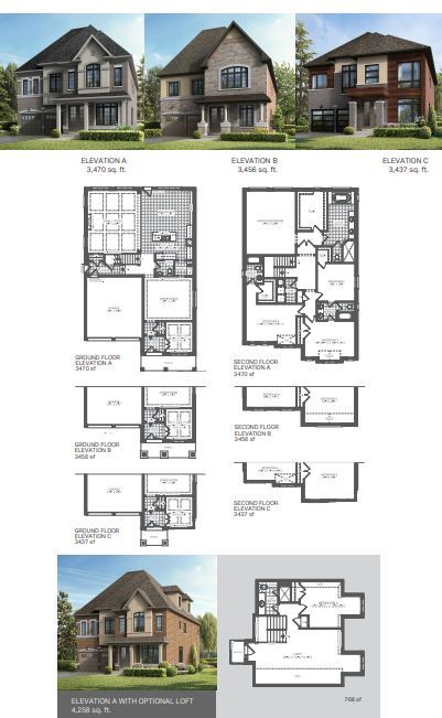
The Bright Side at Mayfield Vi...
Sold
Sold
4
3
1
From 3,470
unit-banner-imageunit-banner-imageunit-banner-image
The Queenston - Elev. A Plan details
The Queenston - Elev. A Plan is now sold.
Check out available nearby plans below.