hero-image-0
hero-image-1

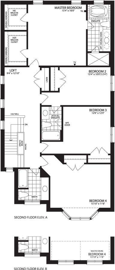
Nautica Plan

Spring Valley Village
Sold
Sold
4
3
1
From 2,930
unit-banner-imageunit-banner-imageunit-banner-image
Nautica Plan details
Nautica Plan is now sold.
Check out available nearby plans below.

Interested? Receive updates

Stay informed with Livabl updates on new community details and available inventory.