The Hawthorn (Loft) - Elev. C
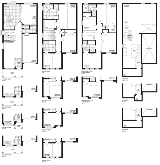
Juniper Gate - Single Family Homes
Georgetown, Halton Hills
The Wembley (Loft) - Elev. C
The Stafford (Loft) - Elev. C
The Citadelle (Loft) - Elev. D
The Mayfair - Elev. B
The Royal (Loft) - Elev. C
The Royal (Loft) - Elev. D
The Wembley (Loft) - Elev. D
Free this weekend? Looking for a home? Check out these events!
New data from both the Canadian Real Estate Association and Teranet show home sales in Canada were up slightly last month. If you were planning on...