hero-image-0
hero-image-1

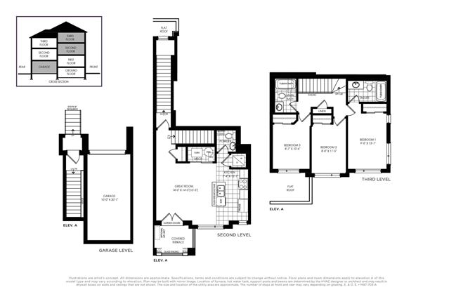
Magnolia - Elev. A Plan

Maya Urban Towns
Sold
Sold
3
2
1
From 1,302
unit-banner-imageunit-banner-imageunit-banner-image
Magnolia - Elev. A Plan details
Magnolia - Elev. A Plan is now sold.
Check out available nearby plans below.

Interested? Receive updates

Stay informed with Livabl updates on new community details and available inventory.