The Westminster End
Kennedy Commons - Townhomes
Brampton North, Brampton
The Governor End
The Governor Interior
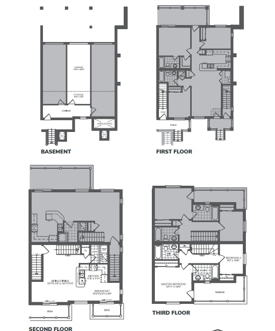
PLAN 1
Summit Series at Arbor West
Northwest Brampton, Brampton
The Crown End
The Crown Interior
The Westminster Interior
Plan 1E Main