hero-image-0
hero-image-1
hero-image-2

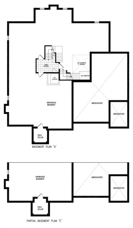
The Xavier (Elevation C) Plan

Credit Manor Heights
Sold
Sold
5
4
1
From 5,006
unit-banner-imageunit-banner-imageunit-banner-image
The Xavier (Elevation C) Plan details
The Xavier (Elevation C) Plan is now sold.
Check out available communities below.