hero-image-0
hero-image-1
hero-image-2

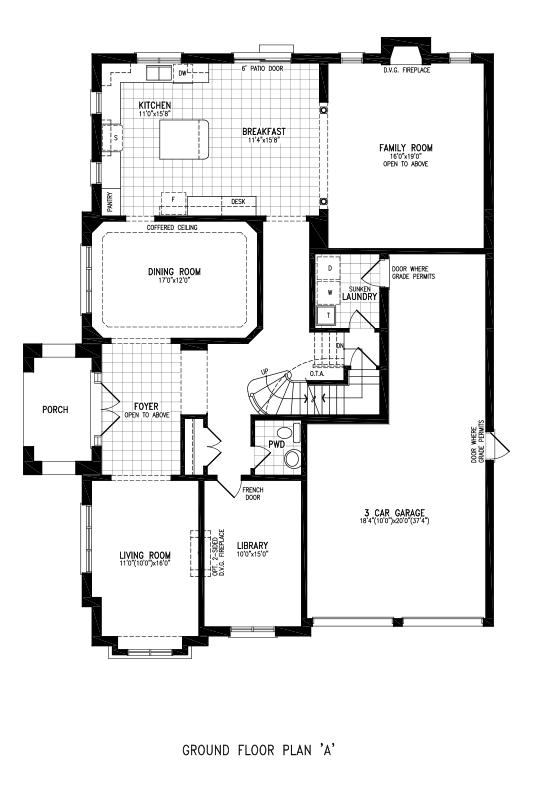
The Cassandra (Elevation A) Plan

Credit Manor Heights
Sold
Sold
4
4
1
From 3,876
unit-banner-imageunit-banner-imageunit-banner-image
The Cassandra (Elevation A) Plan details
The Cassandra (Elevation A) Plan is now sold.
Check out available nearby plans below.