hero-image-0

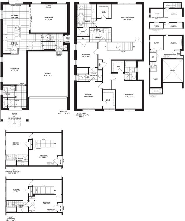
Emerald Plan

Cobblestones South
Sold
Sold
6
4
1
From 3,481
unit-banner-imageunit-banner-imageunit-banner-image
Emerald Plan details
Emerald Plan is now sold.
Check out available nearby plans below.