hero-image-0

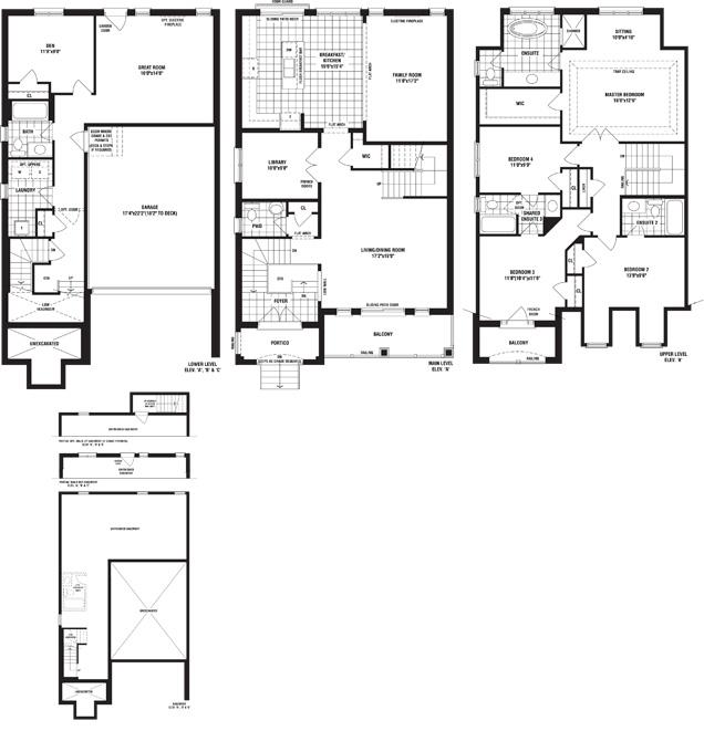
Diamond Plan

Cobblestones South
Sold
Sold
4
4
1
From 3,220
unit-banner-imageunit-banner-imageunit-banner-image
Diamond Plan details
Diamond Plan is now sold.
Check out available nearby plans below.