hero-image-0
hero-image-1

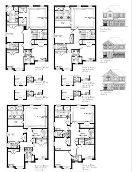
The Hickory Plan

Alloa Greens
Sold
Sold
4
3
1
From 2,950
unit-banner-imageunit-banner-imageunit-banner-image
The Hickory Plan details
The Hickory Plan is now sold.
Check out available nearby plans below.